
灑水車專用水泵基本參數
產品名稱
灑水車專用灑水泵
產品型號
80QZF-60/90N
流量(m3/h)/(Vmin)
60/000
揚程(m)
獸
輸入軸轉速(r/min)
1180
軸功率(kw)
225
自吸高度(m)
6.5
自吸時間(min/4m)
1.5
一、泵的維護和保養
1、低溫季節,泵不工作時應將泵內液體放出,以防止液體結冰損壞泵殼體等零件。
2、滾動軸承長期使用磨損到一定程度時應更換。
3、機械密封不泄漏液體時,不必拆開檢查,若密封液泄漏孔漏液嚴重時,則應拆檢機械密封,拆裝機械密封時要輕拿輕放,保證密封面清潔 ,保護好動環和靜環的鏡面,嚴禁破壞鏡面。機械密封漏液的主要原因是鏡面拉毛所致。另外,若橡膠密封件安裝不當或老化也會導致漏液,此時應修復,調整或更換密封件。
4、齒輪箱中齒輪油應經常檢查,油標是否有油,油過少要加油或更換,新泵使用三個月后要換新齒輪油。爾后每六個月更換一,次。5、泵拆裝順序 80QZBF型泵為雙級其拆卸過程如下∶(1)從車上卸下泵,放盡泵內液體和齒輪箱內潤滑油。
(2)拆下前蓋。(3))擰下葉輪螺母(左旋泵為右旋螺紋,右旋泵為左旋螺紋)。(4)取下一級葉輪,如有困難 ,可在下——步拆齒輪箱體時拆下。
(5)擰下齒輪箱與泵體的連接螺母,用兩個M12螺栓擰人法蘭螺孔均勻地將泵體與齒輪箱體頂開并使之完全分離。(6)取下二級葉輪及拆下密封座(注意不要損壞機械密封)。(7)拆下透蓋取出主動軸組件,拆下悶蓋抽出齒輪軸組件。
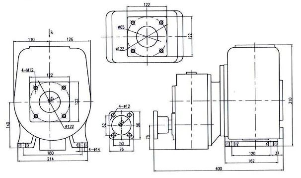
灑水車水泵:盈通/天億65QZBF40/50N型自吸式灑水泵,水泵分左旋、右旋,單級葉輪泵,水泵口徑:65mm,流量40立方/h,揚程50M,轉速:1080r/min。灑水車水泵工廠直銷,售后三包有保障,產品質量有保障,歡迎各經銷商用戶來廠參觀采購。
灑水車全車配件,灑水車車載水泵,灑水炮,前沖頭、噴灑頭、鴨嘴噴頭、后灑、萬向可調式前沖頭,萬向可調式鴨嘴噴頭,取力器,小傳動軸、閥門、開關、消防栓、水管、水槍等對外銷售。
可單件發貨也可批量發貨,自行改裝灑水車可提供全車灑水車配件。
可提供灑水車問題解決方案、技術咨詢服務。

灑水車專用水泵基本參數
產品名稱
灑水車專用灑水泵
產品型號
80QZF-60/90N
流量(m3/h)/(Vmin)
60/000
揚程(m)
獸
輸入軸轉速(r/min)
1180
軸功率(kw)
225
自吸高度(m)
6.5
自吸時間(min/4m)
1.5
一、泵的維護和保養
1、低溫季節,泵不工作時應將泵內液體放出,以防止液體結冰損壞泵殼體等零件。
2、滾動軸承長期使用磨損到一定程度時應更換。
3、機械密封不泄漏液體時,不必拆開檢查,若密封液泄漏孔漏液嚴重時,則應拆檢機械密封,拆裝機械密封時要輕拿輕放,保證密封面清潔 ,保護好動環和靜環的鏡面,嚴禁破壞鏡面。機械密封漏液的主要原因是鏡面拉毛所致。另外,若橡膠密封件安裝不當或老化也會導致漏液,此時應修復,調整或更換密封件。
4、齒輪箱中齒輪油應經常檢查,油標是否有油,油過少要加油或更換,新泵使用三個月后要換新齒輪油。爾后每六個月更換一,次。5、泵拆裝順序 80QZBF型泵為雙級其拆卸過程如下∶(1)從車上卸下泵,放盡泵內液體和齒輪箱內潤滑油。
(2)拆下前蓋。(3))擰下葉輪螺母(左旋泵為右旋螺紋,右旋泵為左旋螺紋)。(4)取下一級葉輪,如有困難 ,可在下——步拆齒輪箱體時拆下。
(5)擰下齒輪箱與泵體的連接螺母,用兩個M12螺栓擰人法蘭螺孔均勻地將泵體與齒輪箱體頂開并使之完全分離。(6)取下二級葉輪及拆下密封座(注意不要損壞機械密封)。(7)拆下透蓋取出主動軸組件,拆下悶蓋抽出齒輪軸組件。